
MIL-STD-2189(SH)
SECTION 672-1
24 December 1987
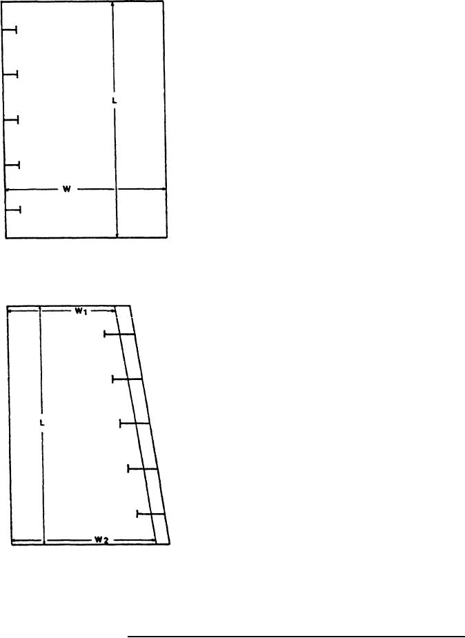
Measure the length or the width from bulkhead to
bulkhead. Do not consider stiffeners along the
bulkhead.
When the width varies at a fairly constant rate
over the length of the storeroom, measure W1 and
W2 from the bulkhead to the point where the shell
plating meets the deck at the extremities of the
storeroom. To determine the average width, add W1
and W2 and divide the result by two.
SH 132317431
FIGURE 1. Deck mesurements for computing storeroom gross volume.
5
For Parts Inquires call Parts Hangar, Inc (727) 493-0744
© Copyright 2015 Integrated Publishing, Inc.
A Service Disabled Veteran Owned Small Business